Министерство Юстиции Российской Федерации
версия для слабовидящих
×
Закрыть
Информация об официальном опубликовании
ПРИКАЗ Минкультуры РФ от 29.09.2015 N 2475
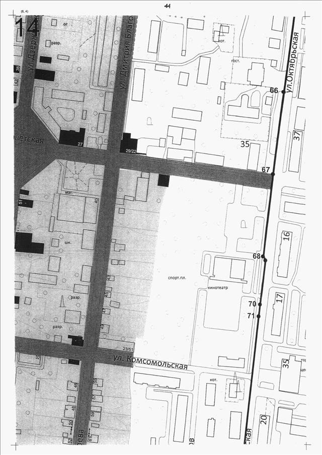
"ОБ УТВЕРЖДЕНИИ ГРАНИЦ ТЕРРИТОРИИ И ПРЕДМЕТА ОХРАНЫ ИСТОРИЧЕСКОГО ПОСЕЛЕНИЯ ФЕДЕРАЛЬНОГО ЗНАЧЕНИЯ ГОРОД ЗАРАЙСК МОСКОВСКОЙ ОБЛАСТИ"
(Зарегистрировано в Минюсте РФ 23.10.2015 N 39443)
Показывать страниц:
1
10
100
Для качественной печати:
PDF-файл документа (31 Мб)
<<
<
41
42
43
44
45
46
47
48
49
50
51
>
>>
Страница
46
из
55
<<
<
41
42
43
44
45
46
47
48
49
50
51
>
>>